About the property
Address 236 E Lane Ave Columbus Ohio 43201
Campus
7 mins
Bedrooms
6
Bathrooms
3
Area
2,000 sqft
Parking
6
Now Leasing for 2026/2027!
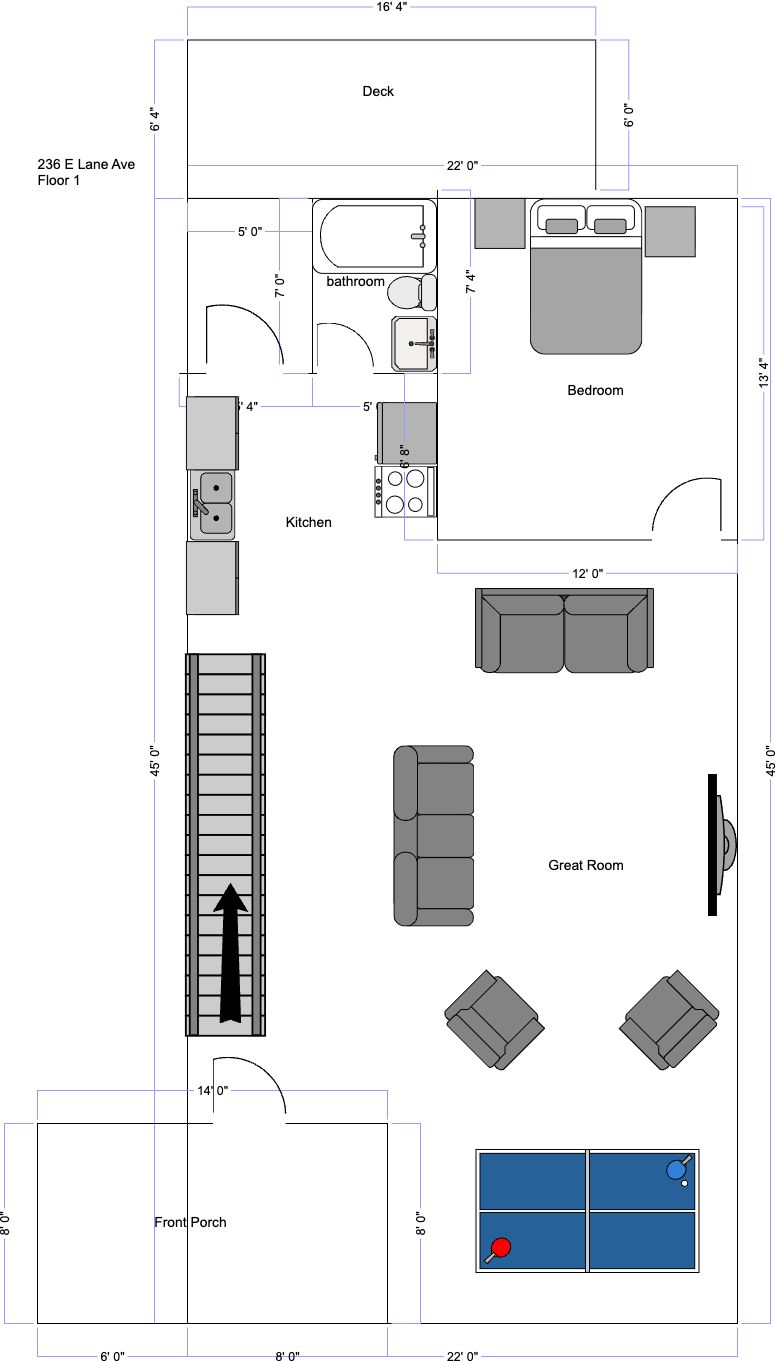
Fantastic location on an iconic Street in the heart of the OSU off campus community. Large amount of common area and back yard for the full college experience. Great location for game day festivities. All bedrooms are good size and 3 full bathrooms make this a very livable property for 6. This property is located a short walk to OSU campus a short scooter ride or Uber ride to the short north and downtown. 6 dedicated parking spaces and laundry included in the rent.
**Property will undergo a large renovation prior to August 2026 making it all new and fresh for new tenants! Attached is the plans for the new layout once renovations are complete. New kitchen, new bathrooms, adding a bedroom, making the great room larger by removing walls, adding third bathroom. Work will be done during breaks throughout this school year and be ready for August 2026**






5
2
3
2,000 sqft